2010 Onyx Street
Vars, ON K0A 3H

Presented by
Sarault Builder, RE/MAX Affiliates Realty Ltd., Brokerage

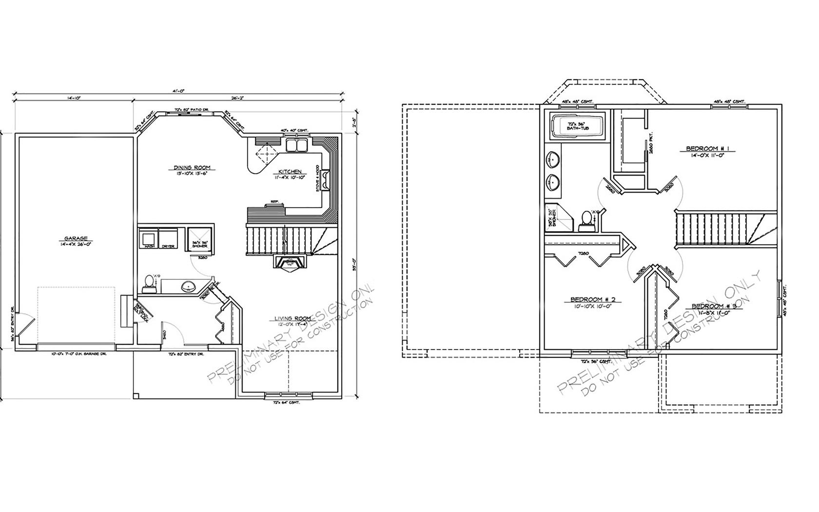
Looking for that perfect home? This could be the one!

Single Family Home

Have you been searching the Internet for that perfect home? This interactive presentation has been made available by the listing agent to help you get a feel for this property and help you determine if this home could be the one! Enjoy the presentation. When you've completed the tour, feel free to contact your Realtor with any questions or to arrange a showing.


Garages

0

Contact

Sarault
Sarault Builder
Sales Representative
RE/MAX Affiliates Realty Ltd., Brokerage
Office: +1 613-837-1117